What Is Gandhian Architecture and How Must It Be Preserved?
There is much talk of a “world-class makeover” of the Sabarmati ashram in Ahmedabad these days. Gandhian building philosophy however, points in a wholly different direction. Interestingly, there is relatively little in the Gandhian archive to vouch for an authentic Gandhian architecture. If we read the household space of Bapu Kuti, the hut in Wardha that Gandhi moved into in 1937 while engaging in village-improvement work, some clues unravel. That structure was designed by his disciple Madeleine Slade (Mirabehn) in keeping with medical advice about Gandhi’s continuing poor health and his need for a “quieter place.” While Slade drew on Gandhi’s need for privacy to imagine an adequate interior world for him, she was not thinking in terms of the continuity of Bapu Kuti’s existence over a period of time. After all, the hut was made out of mud and wattle. From the moment of its inception, Bapu Kuti was to remain exposed to the depredations of time and disrepair.
A house is a kind of guarantee against instability. It is a space where the processes of caring for oneself, or the processes of making and remaking oneself to stay alive can transpire without interruptions. The house is a reassured space for the social reproduction of labour. With its impermanent mud and wattle walls, Bapu Kuti was certainly no such reassured place to tide over discontinuity and impermanence. What exactly was Bapu Kuti then, if not a house in the conventional sense?

Bapu Kuti interior. Photo: Venugopal Maddipati
Consider Gandhi’s observations related to village-improvement work in the mid 1930s, closer to the time he took up residence in Segaon. In 1935, he recommended a grass hut as a house for a village improvement worker in Gujarat. The hut was to be built within the perimeter of the village, and not at a distance from it since it was important for improvement workers to live in the midst of working villagers continuously. In his “letter to a village worker” Gandhi wrote, “A villager absorbed in his [sic] work has no time to go on friendly visits. We must try to emulate him [sic]. You must therefore make it a rule not to move out beyond a radius of ten miles... It is impossible to get under the skin of the villagers until one lives in their midst all the twenty-four hours for an unbroken period.”
Gandhi’s prose is revealing. The improvement worker’s task of emulating “the villager” implied that no less than the entirety of his day, even the time spent in the household for self-care and self-preservation, was to be devoted to the productive labour of village improvement work. Far from a reassured space for the social reproduction of labour, the improvement worker’s house was itself a place of toil. Moreover, not only was the time of the reproduction of labour power, or more specifically, the time spent in the house recovering and resting from work to be placed under the strain, the house itself, on account of its very fragile material constitution, was to remain a cause of physical strain.
To understand this, one may draw attention to Gandhi’s continuing ennoblement of suffering and strain in a religious sense, through his pursuit of varnashramadharma. As is only well known, in Gandhi’s imagination it was often the arms bearing warrior or Kshatriya who willingly suffered through acts of self-sacrificing self-limitation. To commit oneself to staying within the place of fragility and transience, or more specifically, to commit oneself to staying within the space of strain and discontinuity was to be a Kshatriya. The house, in this view, was not so much the space of self-care as it was the space of self-sacrifice. In fact, the fragile material constitution of the house, if not the unremitting nature of the labour of inhabiting it, was but a mere outer manifestation of its occupant’s inward penchant for self-manifesting as a Kshatriya.
There is, however, a paradox in this reading. No sooner do we begin to tether the improvement worker’s house to the fortunes of the self, Gandhi begins to pull us in the exact opposite direction, that is, towards the other. The task at hand in 1935, was not one of self assertion as a Kshatriya, but to emulate a villager. This villager admittedly remained undifferentiated and hazy in Gandhi’s thought, but lived a life of unremitting labour, bereft of the resources to adequately reproduce the self. The village improvement worker’s house then was not a form of self-expression. Rather, a fragile house rendered intelligible the villagers’ inability to effectively make and remake themselves on a daily basis. The house was a space of labour.
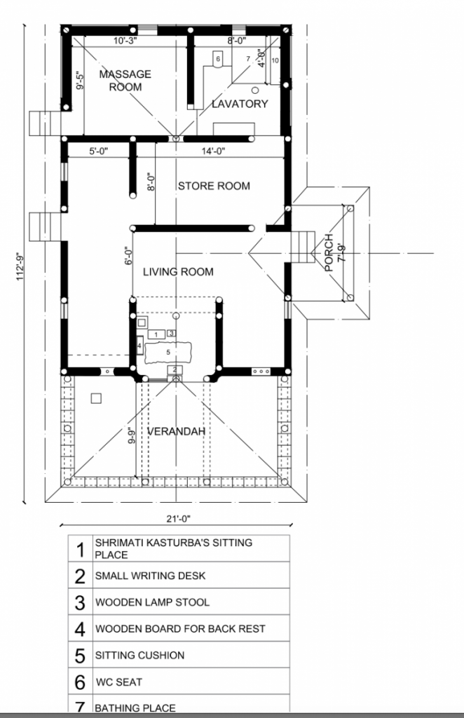
Bapu Kuti was a rather strange place. The Sewagram building came replete with a verandah, a living room, a store-room, a toilet, and even a massage room. The living room, for its part, was portioned out into three sections: a central seating area for Gandhi and Kasturba, flanked by subsidiary spaces for Mahadev Desai and visitors on either side. While it was a house that was re-proportioned by Madeleine Slade to suit Gandhi’s needs, “a proper cottage for Bapu,” its material constitution and spatial allocations also draw attention to its instability and inadequacy as a private space. One can argue therefore that Bapu Kuti was not the space for the self, but the space of the villagers who did not possess a reassured place for social reproduction. In other words, Bapu Kuti was not Gandhi’s “house,” in as much as it may have rendered him homeless.

Plan of Bapu Kuti. Photo credit: Reproduction by LA: Journal of Landscape Architecture
If Bapu Kuti’s architecture, and Gandhi’s injunctions for village improvement work are anything to go by, the task of conserving or reproducing a Gandhian architecture in the present must, of necessity, extend beyond an architecture of permanence for Gandhi’s own ashrams, and embrace those bereft of the resources to adequately reproduce themselves. As we know only too starkly from the pandemic-led exodus of workers from the cities, such people are never too far from us. The conditions of lakhs of construction labourers working on so-called world-class building sites in India, without the benefit of shelter or a quiet place of their own, are not too different from those of the villagers of Gandhi’s imagination in 1935. What might a Sabarmati ashram dedicated to the construction labourers of Ahmedabad look like?
Venugopal Maddipati is an architectural historian who teaches at the School of Design, Ambedkar University, New Delhi. He is the author of Gandhi and Architecture: A Time for Low-Cost Housing.
This article went live on February thirteenth, two thousand twenty two, at fifteen minutes past two in the afternoon.The Wire is now on WhatsApp. Follow our channel for sharp analysis and opinions on the latest developments.




